thank you
Your email has been sent.
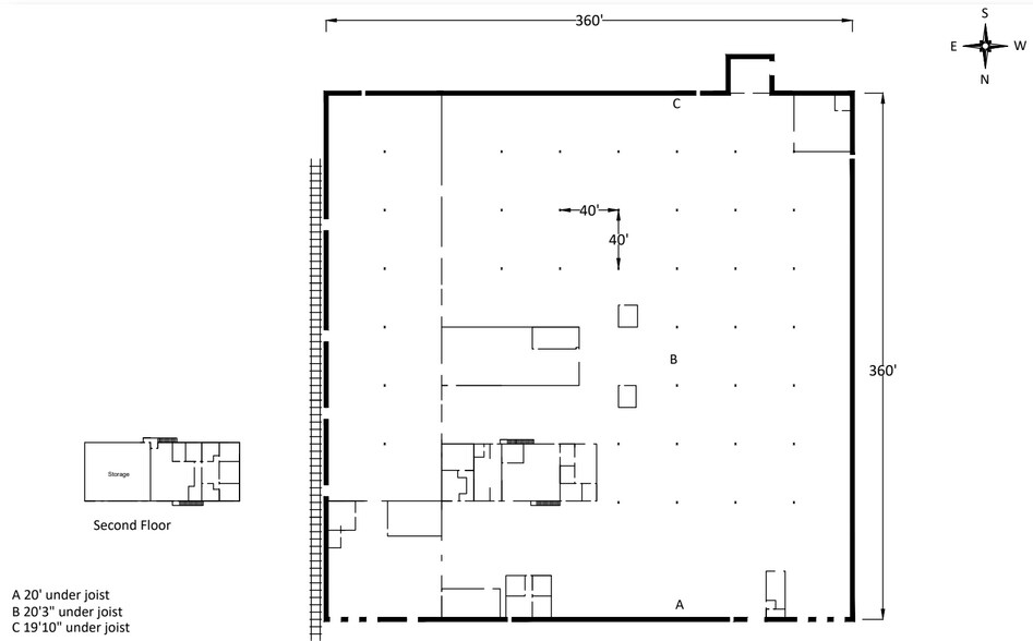
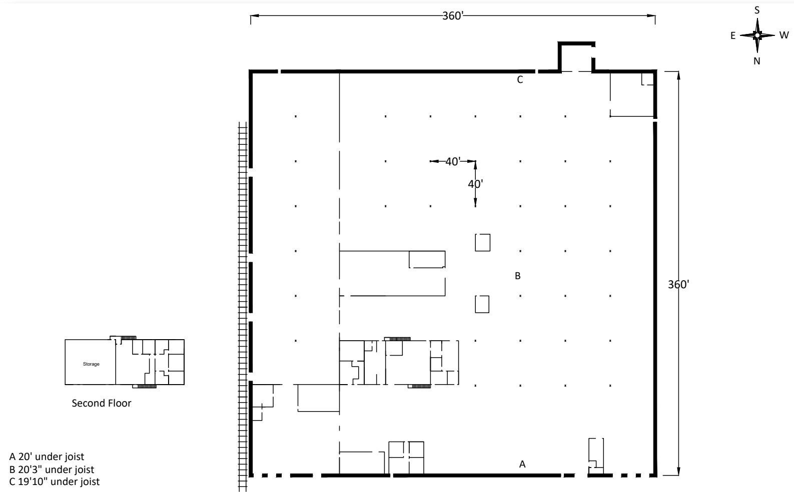
6401 Lindsey Rd 131,044 SF of Industrial Space Available in Little Rock, AR 72206



Highlights
- 4 miles to Clinton National Airport.
- Warehouse is heated and cooled.
- Property has Rail Spur that can be activated.
- Excellent access to Interstate 440.
- Located in the Port of Little Rock.
- Ceiling heights range from 19’10” to 21’2”.
Features
Drive In Bays
1
Exterior Dock Doors
7
Standard Parking Spaces
200
All Available Space(1)
Display Rental Rate as
- Space
- Size
- Term
- Rental Rate
- Space Use
- Build-Out
- Available
Warehouse is heated and cooled. Located in the Port of Little Rock. Property has Rail Spur that can be activated.
- Lease rate does not include utilities, property expenses or building services
- 1 Drive Bay
- Includes 5,913 SF of dedicated office space
- 7 Loading Docks
| Space | Size | Term | Rental Rate | Space Use | Build-Out | Available |
| 1st Floor | 131,044 SF | Negotiable | $5.50 /SF/YR $0.46 /SF/MO $59.20 /m²/YR $4.93 /m²/MO $60,062 /MO $720,742 /YR | Industrial | Full Build-Out | Now |
1st Floor
| Size |
| 131,044 SF |
| Term |
| Negotiable |
| Rental Rate |
| $5.50 /SF/YR $0.46 /SF/MO $59.20 /m²/YR $4.93 /m²/MO $60,062 /MO $720,742 /YR |
| Space Use |
| Industrial |
| Build-Out |
| Full Build-Out |
| Available |
| Now |
1 of 1
Videos
Matterport 3D Exterior
Matterport 3D Tour
Photos
Street View
Street
Map
1st Floor
| Size | 131,044 SF |
| Term | Negotiable |
| Rental Rate | $5.50 /SF/YR |
| Space Use | Industrial |
| Build-Out | Full Build-Out |
| Available | Now |
Warehouse is heated and cooled. Located in the Port of Little Rock. Property has Rail Spur that can be activated.
- Lease rate does not include utilities, property expenses or building services
- Includes 5,913 SF of dedicated office space
- 1 Drive Bay
- 7 Loading Docks
Property Overview
131,044 square foot industrial building on a 11.13-acre site.
Manufacturing Facility Facts
Building Size
131,044 SF
Lot Size
11.13 AC
Year Built
1974
Construction
Reinforced Concrete
Zoning
I-3 - Industrial Zoning
Not walkable
10/100
Exceptionally drivable
100/100
Limited public transit
20/100
Somewhat bikeable
20/100
1 of 6
Videos
Matterport 3D Exterior
Matterport 3D Tour
Photos
Street View
Street
Map
Presented by
6401 Lindsey Rd
Hmm, there seems to have been an error sending your message. Please try again.
Thanks! Your message was sent.



